 拡大画像を見る
|
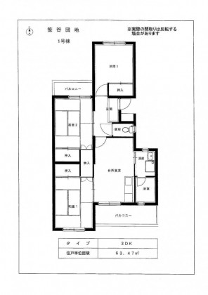
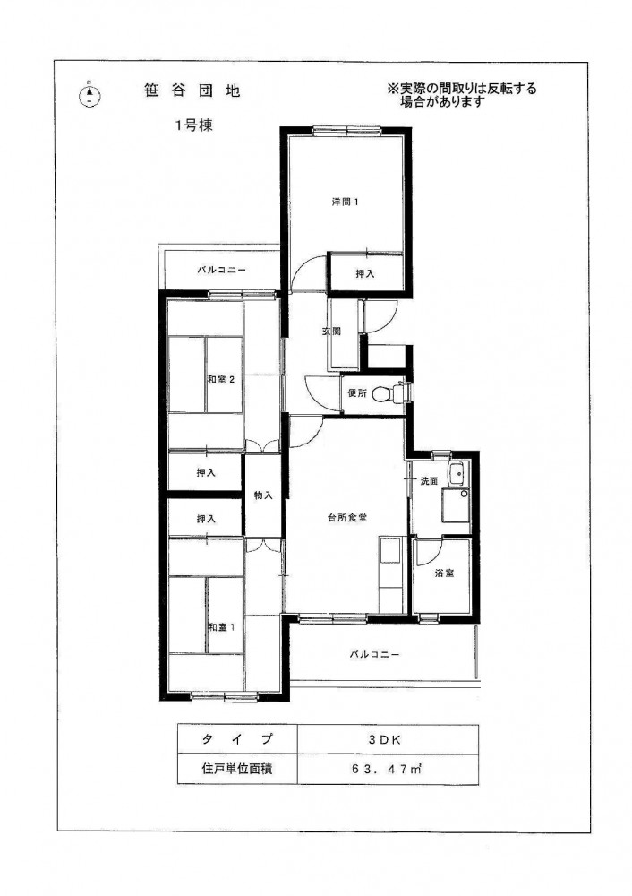
笹谷 団地概要
- ●棟番号 : 1号棟401号室
- ●建設年度 : S62
- ●所在地 : 福島市笹谷字南田6
- ●間取り : 3DK
- ●階数 : 4階
- ●住戸単位面積 : 63.4m2
- ●家賃 :
| 収入区分 |
家賃 |
| 0〜104,000 |
21,400円
|
| 104,001〜123,000 |
24,700円
|
| 123,001〜139,000 |
28,200円
|
| 139,001〜158,000 |
31,800円
|
| 158,001〜186,000 |
36,400円
|
| 186,001〜214,000 |
42,000円
|
- ●駐車料金 : 2,000円
- ●学区 : 笹谷小・信陵中
- ●備考 : 浴槽・ガス風呂釜はリース契約となります。
担当ガス会社:福島ガス(都市)。リース契約内容の変更はできません。
リース料・リース契約料は入居者負担となります。但し詳細についてはガス会社にお問い合わせ下さい。
共益費・町内会費などが生じます。
エレベーターはありません。
●災害リスク
浸水想定区域内です。 洪水・内水 浸水高 : 0.2m未満
|