 拡大画像を見る
|
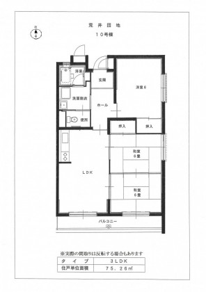
荒井 団地概要
- ●棟番号 : 10号棟203号室
- ●建設年度 : H16
- ●所在地 : 福島市荒井字苗代添43
- ●間取り : 3LDK
- ●階数 : 2階
- ●住戸単位面積 : 75.2m2
- ●家賃 :
| 収入区分 |
家賃 |
| 0〜104,000 |
26,100円
|
| 104,001〜123,000 |
30,200円
|
| 123,001〜139,000 |
34,500円
|
| 139,001〜158,000 |
38,900円
|
| 158,001〜186,000 |
44,500円
|
| 186,001〜214,000 |
51,400円
|
- ●駐車料金 : 1,500円
- ●学区 : 荒井小・西信中
- ●備考 : 浴槽・給湯器付きガス風呂釜はリース契約となります。
担当ガス会社:福島ガス(プロパン)。リース契約内容の変更はできません。
リース料・リース契約料は入居者負担となります。但し詳細についてはガス会社にお問い合わせ下さい。
共益費・町内会費などが生じます。
エレベーターはありません。
●災害リスク
浸水想定区域内です。 洪水・内水 浸水高 : 0.2m未満
|